To Let
117b Dorchester Road, Weymouth, Dorset, DT4 7LA
£500 pcm
Property Type: Office, Retail

Property Summary

Key Features:

•Prominent ground floor position

•340 sq ft

•Large open-plan main area

•Separate W/C and utility area with sink

•Previously used as a hair salon – suitable for various business types

This well-presented ground floor commercial unit is situated in a prominent and popular location just off the extremely busy Dorchester Road the main road into Weymouth.

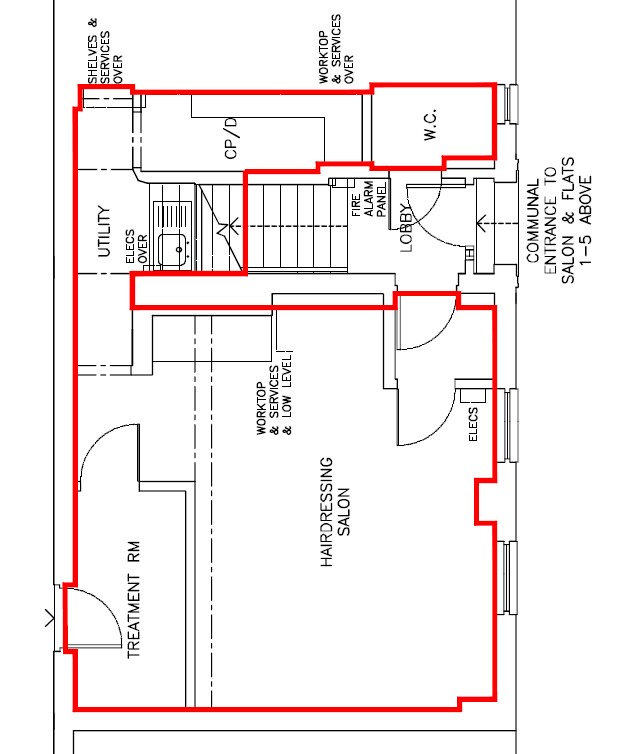
The premises are accessed via a communal front door leading to a private entrance and lobby, which opens into a spacious main room previously used as a hair salon. The current layout also includes a private treatment room with its ow separate rear access, offering flexibility for a variety of potential uses, subject to necessary consents.

The unit also includes a separate W/C and a useful utility and storage area with sink facilities, providing additional convenience for occupiers.

This property presents an excellent opportunity for a small business seeking affordable, visible premises in a busy Weymouth location.

Location:

117b Dorchester Road enjoys a highly accessible position close to a mix of local shops and amenities, making it ideal for attracting both regular and passing trade.

Terms:

Available on a new lease at a guide rent of £500 pcm exclusive of other outgoings such as utilities. Terms to be agreed.

Business Rates:

The current Rateable Value of the property is £1,700. Rates payable are usually approx 50% and this would usually qualify for small business rates relief, so in most cases Nil rates to pay.

Floorplans

Location

l

Request Details

Interested in this property? Call us today on
 

01305 251400